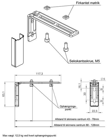
Vægbeslag til dobbelte gardinstænger pleat, sort Art nr 17S2 Kampanjerbjudanden! Fler val Visa extra val Dölj extra val Heraf moms Læg i varekurv I lager. Leveringstid Bestillingsvare. Leveringstid1-2 uger Produkten är inte tillgänglig i detta utförande! Vægbeslag til dobbelte gardinstænger pleat, sort Produktinformation Vægbeslag til dobbelte gardinstænger pleat, sort Produktinformation Till toppen Produktinformation Vægbeslag i sort, der passer til vores gardinskinne pleat, når du ikke ønsker at montere skinnen i loftet. Passer til dobbeltgardiner. Gardinophængspunkterne er justerbare mellem 43-78 mm og 88-128 mm fra væggen. Den maksimale vægt for hvert gardin er 12,5 kg. Du skal bruge lige så mange vægbeslag som antallet af loftbeslag, der følger med gardinskinnen. BEMÆRK! Ikke egnet til wave gardinskinner, da wave gardiner optager mere plads i dybden end pleat gardiner, og derfor passer dobbelte wave gardiner ikke i denne vægbeslag. Vi anbefaler i stedet at montere dobbelte skinner i loftet med de medfølgende loftsbeslag.